Warning: Undefined array key "cerca" in /var/www/html/pannello.php on line 14
Ostia Antica - Pannellistica

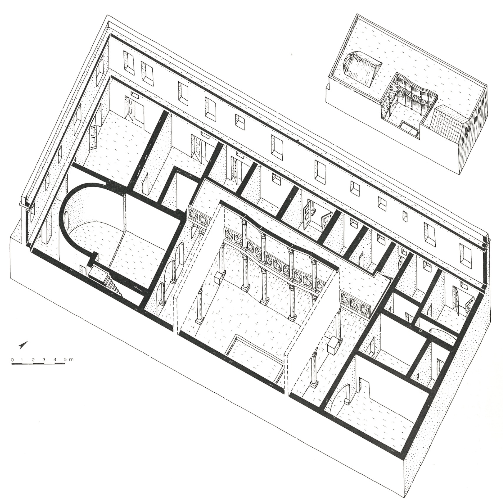
Domus della Fortuna Annonaria

(Reg. V, Is. II, 8)

The area of the eastern cults and the Porta Laurentina residential district


Warning: Undefined array key "zona" in /var/www/html/pannello.php on line 226

Warning: Undefined array key "zona" in /var/www/html/pannello.php on line 227

A   Monumental entrance
B   Vestibule
C   Peristyle courtyard 
D  Banqueting hall
E   Heated room

The aristocratic domusth (house), whose current appearance dates to the 4 century AD, was installed inside a house of the mid-2nd century AD of which it preserved the peristyle in the central courtyard. The entrance was monumentalized with a prothyrum (colonnaded entrance) (A) that led into a vestibule (B). This in turn gave access to the large courtyard (C), against the back wall of which is a cast of the statue of a goddess identified as Fortuna Annonaria (the goddess of food supplies) or as a personification of Ostia. The main room (D) was adorned with marbles, a fountain and probably statues; the apse must have hosted the stibadium, the semi-circular triclinium couch on which meals were eaten. A private room of the house (E) was converted into a heated room and paved with a mosaic depicting mythological scenes.

Axonometric reconstruction of the final phase of the building
(J.S. Boersma)

Mosaic floor of the heated room (E)

Statue of Venus found inside the domus

Section/prospect of the domus (Dall’Osteria, De Feo, Iokilehto, Zepeda)

Statue of Diana discovered in the domus

Free reconstruction of the domus’s stibadium

View of the domus’s latrine

Sezione Multimediale

Per poter fruire dei contenuti video di questa sezione, è necessario munirsi di un visore multimediale Google Cardboard o simile

Alla scoperta dei Dinosauri

Durata: 03:00 minuti