Warning: Undefined array key "cerca" in /var/www/html/pannello.php on line 14
Ostia Antica - Pannellistica

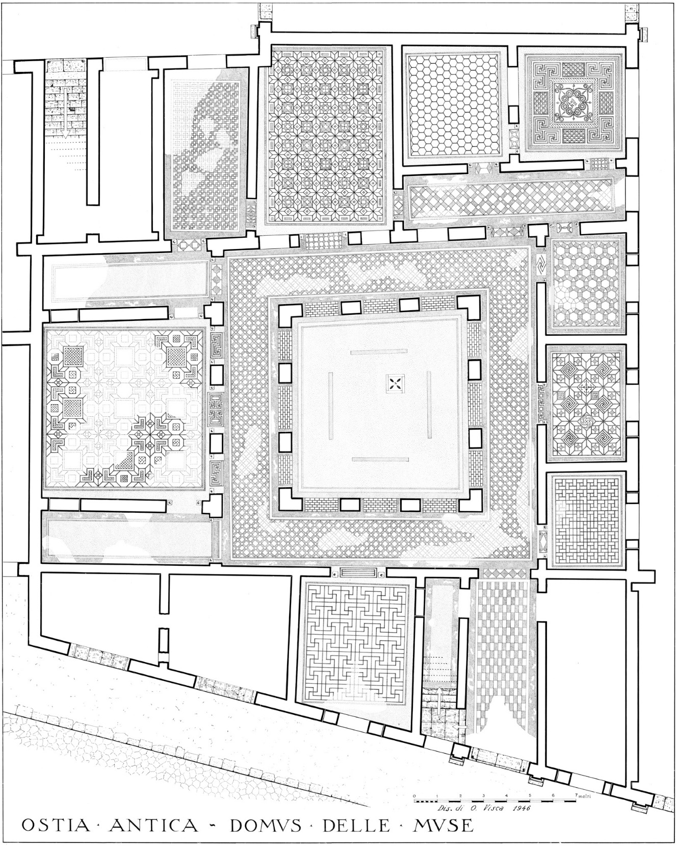
Insula delle Muse

(Reg. III, Is. IX, 22)

The residential districts of the upper-middle class


Warning: Undefined array key "zona" in /var/www/html/pannello.php on line 226

Warning: Undefined array key "zona" in /var/www/html/pannello.php on line 227
  • A   Vestibule 
    B    Kitchen 
    C   Cubiculum 
    D    Sitting room 
    E    Triclinium 
    F    Courtyard

The only residence among those belonging to the complex of the Case a Giardino to have a porticoed courtyard, this building also stands out from the others for its large size and the quality of the decorative programme. The building still preserves the mosaic floors of the Hadrianic phase (AD 130), with geometrical and figurative motifs chosen to reflect the importance of each room, and a set of wall paintings that are among the city’s most important. Belonging to the original phase are the paintings with the cycle of Apollo and the Muses in the sitting room near the entrance (D), the decorations of the huge banqueting hall (triclinium) (E) and, in one of the private rooms (C), the paintings on a white ground with images linked to the god Dionysus. The later renovations of part of the wall decorations indicate that the house remained in use at least until the 4th century AD.

Plan of the insula with the mosaics 
(O. Visca)

View of the painted decoration of room D

Detail of the figure of Apollo in room D

View of the painted decoration of room C

Detail of painted decoration, environment D

Detail of painted decoration, environment C

Detail of painted decoration of one of the environments

View of the mosaic of one of the environments

Sezione Multimediale

Per poter fruire dei contenuti video di questa sezione, è necessario munirsi di un visore multimediale Google Cardboard o simile

Alla scoperta dei Dinosauri

Durata: 03:00 minuti