Warning: Undefined array key "cerca" in /var/www/html/pannello.php on line 14
Ostia Antica - Pannellistica

Fontana


Warning: Undefined array key "zona" in /var/www/html/pannello.php on line 226

Warning: Undefined array key "zona" in /var/www/html/pannello.php on line 227
  • Fontana di Via della Fontana
    Fontane pubbliche 
    Ninfei pubblici
  •  
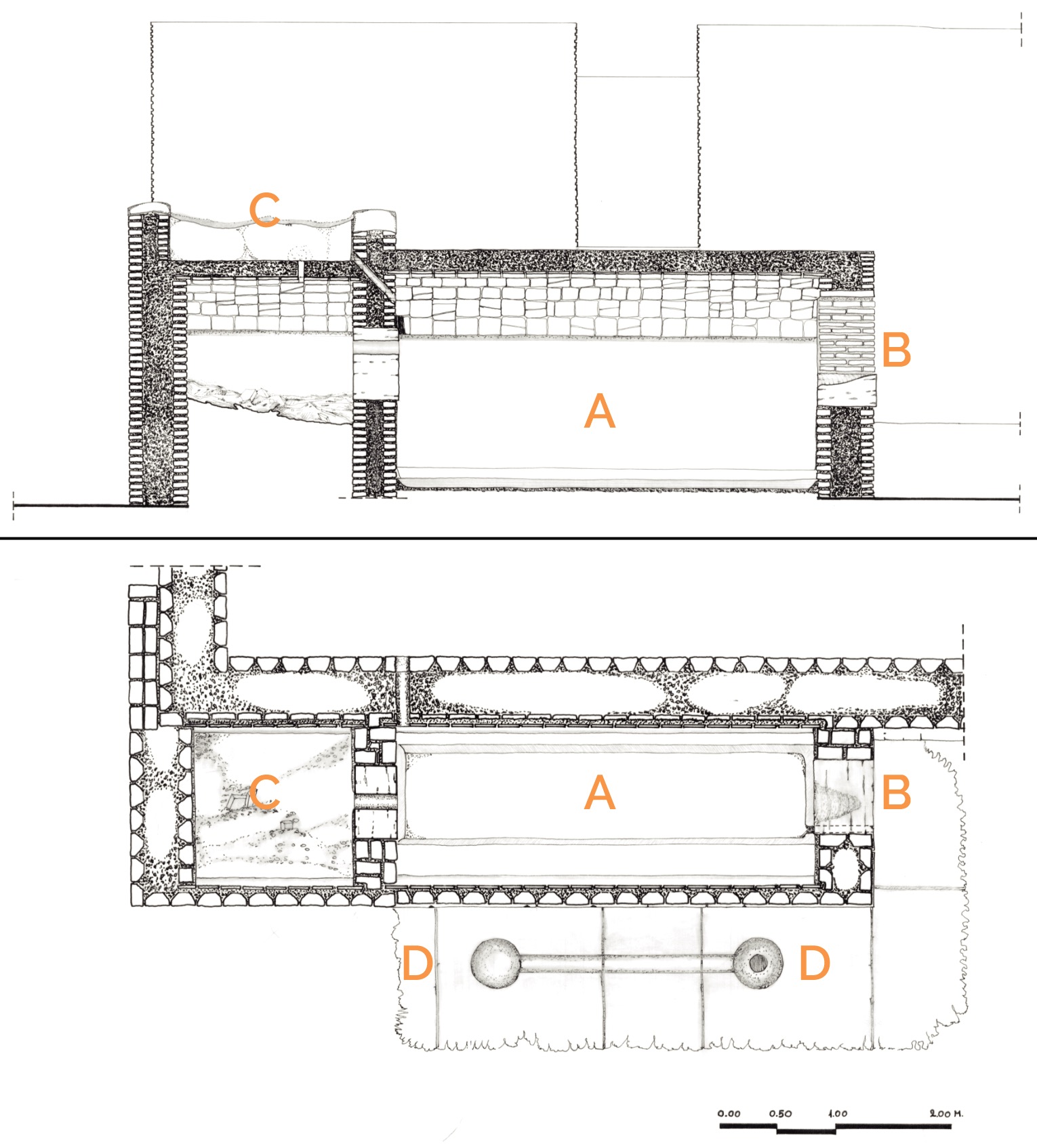
  • A- Vasca 
    B - Apertura per il prelievo dell’acqua 
     C -Serbatoio 
    D - Incavi per il posizionamento dei recipienti

A seguito della costruzione dell’acquedotto cittadino, risalente al I secolo d.C., Ostia fu dotata di una serie di fontane, distribuite sia in aree pubbliche sia negli spazi comuni degli edifici. L’aspetto di tali fontane variava in funzione dell’ubicazione e della visibilità: nelle piazze e lungo gli assi viari principali si privilegiarono ninfei e fontane monumentali, mentre nelle vie minori e all’interno degli edifici si optò per fontane “a bauletto”, così chiamate per la caratteristica forma della loro copertura. Questo tipo di fontana, di cui Ostia conserva numerosi esempi, è caratterizzato dalla presenza di una vasca (A) coperta con volta a botte, accessibile da una finestrella (B) e in questo caso collegata a un serbatoio retrostante (C): l’acqua poteva essere prelevata attraverso l’apertura laterale per mezzo di secchi oppure da due ugelli ubicati sulla fronte, in corrispondenza dei quali incavi (D) appositamente praticati nel pavimento consentivano il corretto posizionamento dei recipienti.

Ricostruzione di una fontana del tipo “a bauletto” conservata nelle Case a Giardino

Sezione e pianta della fontana di Via della Fontana
 (S. Pittas, K. Mountzouridis, D. Kunavos)     

Studio sulle fontane a bauletto di Ostia antica 
(M.E. Talani, C. Bellanca)

Rilievo della fontana a bauletto di Casa di Diana
 (M.E. Talani)

Ugello a forma di delfino della fontana di Via della Fontana

Sezione Multimediale

Per poter fruire dei contenuti video di questa sezione, è necessario munirsi di un visore multimediale Google Cardboard o simile

Alla scoperta dei Dinosauri

Durata: 03:00 minuti